Telefone: +55 35 3197-0045
E-mail:
atendimento@lsse.com.br
facebook
instagram
whatsapp
Início
A LS
Portfólio
Nosso trabalho
Energia Solar
Divisão Industrial
Clientes
Projetos
Quem somos
Conheça
Nossa loja
Onde estamos
Projeto 23/07/18
Picos - PI
Portfólios
Fotos
Planta
localização
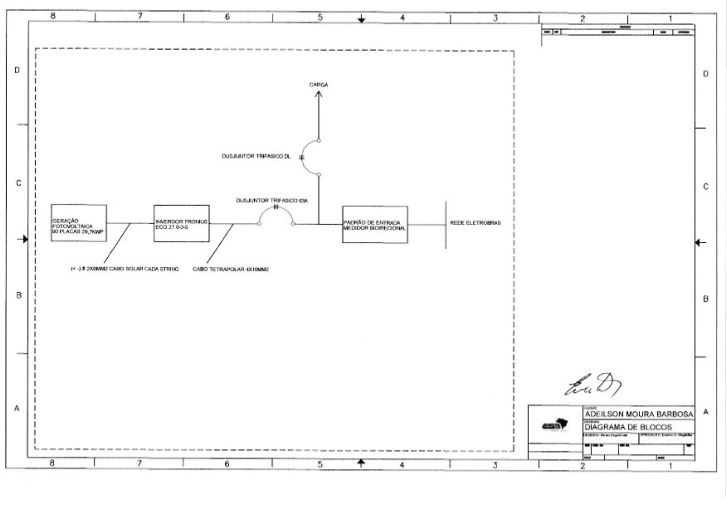
Diagrama
unifilar
Padrão entrada
Diagrama blocos
Detalhes
Descrição
Projeto e aprovação do sistema junto a concessionária
cliente
Adeilson Moura Barbosa (edifício 02)
local da instalação
Picos/PI
Data
23/07/2018
Potência gerada
29.700Wp
Área dos módulo fotovoltaicos
200m
2
Número de strings
5
Número de módulos por arranjo
18
Geração media
4.000 kw.h mês